【 一戸建て 】★ 更新可能な戸建物件 ★
| 最寄駅 | 所在地 | 間取り | 面積 | 築年月 | 賃料 管理費等 | 敷金 礼金 |
|---|---|---|---|---|---|---|
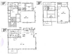
東海道線大船駅 徒歩 15分 | 神奈川県鎌倉市岩瀬934-6 | 3 LDK | 82㎡ | 2007年12月 | 138,000円 |
- - |
★ 大船 賃貸物件 ★
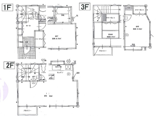
物件写真・間取り
物件概要
| 物件名 | 大船岩瀬貸家 |
|---|
| 交通機関 | 東海道線大船駅 徒歩 15分 横須賀線大船駅 徒歩 15分 |
|---|
| 建物構造 | 木造 |
|---|
| 駐車場 | 有 |
|---|
| 駐車場料金 | 付き |
|---|
| 住宅保険 | 加入義務有 |
|---|
| 保険料 | 25000円 |
|---|
| 契約期間 | 2年間 |
|---|
| 現況 | 成約済み |
|---|
| 設備・条件 | ピアノ相談可 エアコン2基 照明器具4基 フローリング バストイレ別 浴室乾燥機 追い焚き機能 システムキッチン 3口コンロ 食洗器 独立洗面台 ウォシュレット モニター付きインターホン |
|---|
| 備考 | リーヴサポート24 13000円2年間 |
|---|
| 取引態様 | 媒介 |
|---|
| 物件番号 | 0138 |
|---|










稲村ヶ崎ガレージハウス