【 一戸建て 】★ 2世帯住宅の一部を賃貸 ★
| 最寄駅 | 所在地 | 間取り | 面積 | 築年月 | 賃料 管理費等 | 敷金 礼金 |
|---|---|---|---|---|---|---|
横須賀線北鎌倉駅 徒歩 14分 | 神奈川県鎌倉市山ノ内672-29 | 2 LDK | 88.32㎡ | 2006年09月 | 112,000円 |
- - |
★ 鎌倉 賃貸物件 ★
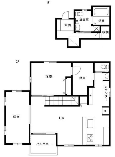
物件写真・間取り
物件概要
| 物件名 | 北鎌倉戸建 |
|---|
| 交通機関 | 横須賀線北鎌倉駅 徒歩 14分 |
|---|
| 建物構造 | 軽量鉄骨 |
|---|
| 駐車場 | 無 |
|---|
| 住宅保険 | 加入義務有 |
|---|
| 保険料 | 24000円 |
|---|
| 契約期間 | 定期借家契約2年間 |
|---|
| 現況 | 成約済み |
|---|
| 設備・条件 | バストイレ別 追い焚き機能 浴室乾燥機 独立洗面台 室内洗濯機置き場 ウォシュレット トイレ2ヶ所 システムキッチン コンロ3口 エアコン3台 モニター付きインターホン 納戸 バルコニー 都市ガス |
|---|
| 備考 | TV視聴にはCATV又は光TVへの加入が必要 視聴にかかる費用は借主負担 |
|---|
| 取引態様 | 媒介 |
|---|
| 物件番号 | 0834 |
|---|










MyStyle鎌倉材木座