【 マンション 】★ 新築デザイナーズ物件 事務所使用可 ★
| 最寄駅 | 所在地 | 間取り | 面積 | 築年月 | 賃料 管理費等 | 敷金 礼金 |
|---|---|---|---|---|---|---|
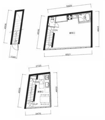
横須賀線鎌倉駅 徒歩 4分 | 神奈川県鎌倉市小町2-7 | 1 LDK | 44.14㎡ | 2017年03月 | 150,000円 |
- - |
★ 鎌倉 賃貸物件 ★
物件写真・間取り
物件概要
| 物件名 | 6軒長屋 |
|---|
| 交通機関 | 横須賀線鎌倉駅 徒歩 4分 江ノ島電鉄鎌倉駅 徒歩 4分 |
|---|
| 建物構造 | 鉄骨造 |
|---|
| 住宅保険 | 加入義務有 |
|---|
| 契約期間 | 2年間 |
|---|
| 現況 | 成約済み |
|---|
| 設備・条件 | バストイレ別 追い焚き機能 システムキッチン IHコンロ 室内洗濯機置き場 都市ガス エアコン デザイナーズ 事務所使用相談可 |
|---|
| 備考 | 店舗として使用出来る他の号室も募集中です。 |
|---|
| 取引態様 | 媒介 |
|---|
| 物件番号 | 1991 |
|---|










MyStyle鎌倉材木座