【住居用物件】ビラ久木A棟(テラスハウス)|横須賀線逗子駅|鎌倉・湘南・横浜エリアの賃貸・お部屋探し【鎌倉へやこまち】株式会社エムグラント

住宅用賃貸物件

【 テラスハウス 】★ 敷地内駐車場1台付き ★

最寄駅所在地間取り面積築年月賃料
管理費等
敷金
礼金

横須賀線逗子駅

徒歩 12分
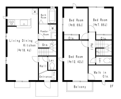
神奈川県逗子市久木5-5-9 3 LDK 89.43㎡2010年09月130,000円 -
-

★ 逗子 賃貸物件 ★

物件写真・間取り

物件概要

物件名

ビラ久木A棟

交通機関

横須賀線逗子駅 徒歩 12分

建物構造

木造

駐車場

駐車場料金

1台付き

住宅保険

加入義務有り

契約期間

定期借家契約2021年2月28日迄

現況

成約済み

設備・条件

バストイレ別 追い炊き機能 独立洗面台 室内洗濯機置き場 システムキッチン グリル ガスコンロ3口 トイレ2ヶ所 温水洗浄便座 エアコン フローリング ウォークインクローゼット

取引態様

媒介

物件番号

0774

おすすめ賃貸物件
種別
マンション [1 DK]
路線
横須賀線鎌倉駅
所在地
神奈川県鎌倉市材木座3-4-24
賃料
85,000円
種別
マンション [1 R]
路線
江ノ島電鉄線七里ガ浜駅
所在地
神奈川県鎌倉市七里ガ浜1-1-1
賃料
200,000円
おすすめ事業物件
種別
アパート [2 LDK]
路線
横須賀線逗子駅
所在地
神奈川県逗子市久木5-2-13
賃料
115,000円
会社案内

株式会社エムグラント

神奈川県鎌倉市雪ノ下1-9-29シャングリラ鶴岡1階

メールフォームはこちら

宅建免許番号:神奈川県知事(3)第28475号

株式会社エムグラントはあなたのために、情熱を持って最高級のお部屋探しのお手伝いをさせていただきます。湘南エリアの賃貸物件(アパート・マンション・戸建・テラスハウス・店舗・事務所)なら鎌倉へやこまちにお任せください♪鎌倉はもちろんのこと、逗子・葉山・藤沢・茅ヶ崎・平塚・横浜・横須賀など幅広いエリアの物件を取り揃えております。鎌倉へやこまちのHPは最高のお部屋を見つけていただくため、充実した検索機能を備えております。デザイナーズ物件、ペット可物件、礼金0円物件、新築物件などの物件はもちろん、海が見える物件、海まで歩ける物件など、お客様がとことんこだわるように、私たち鎌倉へやこまちも納得のいくまで情熱を持ってこだわったお部屋探しのお手伝いをさせていただきます!もしお気に入りの物件が見つからなければ、スタッフへのお問合せが可能です。気になる賃貸物件(アパート・マンション・戸建・テラスハウス・店舗・事務所)がございましたら、お気軽にお問い合わせください。あなたとステキなお部屋の最高の出逢いが待っています!
【 鎌倉 賃貸 取扱い物件数No.1♪ kamakura chintai 】