【 マンション 】★ 海を望める最上階のお部屋 ★
| 最寄駅 | 所在地 | 間取り | 面積 | 築年月 | 賃料 管理費等 | 敷金 礼金 |
|---|---|---|---|---|---|---|
横須賀線逗子駅 バス 12分徒歩1分 | 神奈川県三浦郡葉山町堀内1170-1 | 2 LDK | 83.32㎡ | 2002年02月 | 260,000円 |
- - |
★ 葉山 賃貸物件 ★
物件写真・間取り
物件概要
| 物件名 | グランシティ葉山シーフォリア |
|---|
| 交通機関 | 横須賀線逗子駅 バス 12分徒歩1分 |
|---|
| 建物構造 | RC |
|---|
| 所在階 / 階数 | 6階 |
|---|
| 駐車場 | 有 |
|---|
| 駐車場料金 | 1台付 |
|---|
| 住宅保険 | 加入義務有 |
|---|
| 契約期間 | 2年間(更新可) |
|---|
| 現況 | 成約済み |
|---|
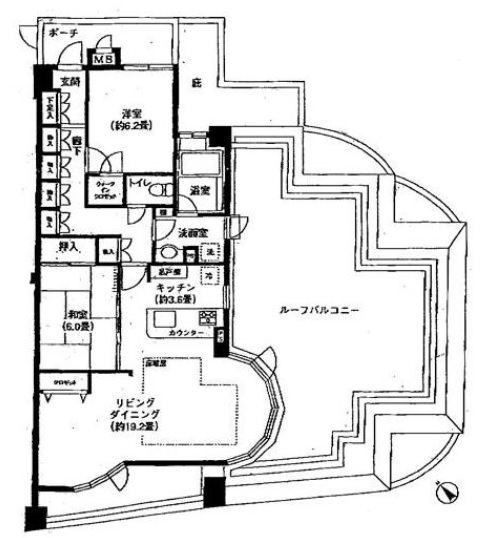
| 設備・条件 | バストイレ別 追い炊き機能 浴室乾燥機 独立洗面台 室内洗濯機置き場 温水洗浄便座 システムキッチン 都市ガス フローリング ウォークインクローゼット バルコニー ルーフバルコニー エレベーター オートロック 最上階 角部屋 |
|---|
| 備考 | ペット飼育時敷金1ヶ月追加 |
|---|
| 取引態様 | 媒介 |
|---|
| 物件番号 | 2089 |
|---|










稲村ヶ崎ガレージハウス