【 アパート 】★ 新築 インターネット無料 ★
| 最寄駅 | 所在地 | 間取り | 面積 | 築年月 | 賃料 管理費等 | 敷金 礼金 |
|---|---|---|---|---|---|---|
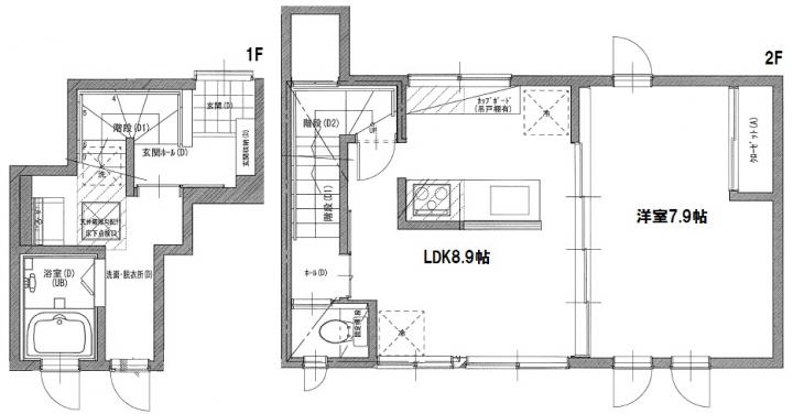
横須賀線鎌倉駅 徒歩 6分 | 神奈川県鎌倉市大町1-1-4 | 1 LDK | 58.7㎡ | 2017年10月 | 134,000円 |
- - |
★ 鎌倉 賃貸物件 ★
物件写真・間取り
物件概要
| 物件名 | 鎌倉ザ・レジデンス |
|---|
| 交通機関 | 横須賀線鎌倉駅 徒歩 6分 |
|---|
| 建物構造 | 木造 |
|---|
| 所在階 / 階数 | 1階・2階 |
|---|
| 住宅保険 | 加入義務有 |
|---|
| 保険料 | 20000円 |
|---|
| 契約期間 | 2年間 |
|---|
| 現況 | 成約済み |
|---|
| 設備・条件 | バストイレ別 追い焚き機能 独立洗面台 室内洗濯機置き場 システムキッチン 食洗機 温水洗浄便座 モニター付きインターホン 都市ガス 収納 エアコン 宅配ボックス |
|---|
| 取引態様 | 媒介 |
|---|
| 物件番号 | 2212 |
|---|










MyStyle鎌倉材木座