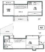
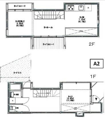
【 テラスハウス 】★ 新築 デザイナーズ物件 ★
| 最寄駅 | 所在地 | 間取り | 面積 | 築年月 | 賃料 管理費等 | 敷金 礼金 |
|---|---|---|---|---|---|---|
横須賀線鎌倉駅 徒歩 5分 | 神奈川県鎌倉市御成町5-16 | 2 LDK | 49.75㎡ | 2018年04月 | 160,000円 |
- - |
★ 鎌倉 賃貸物件 ★
物件写真・間取り
物件概要
| 物件名 | 御成ふくろ小路 |
|---|
| 交通機関 | 横須賀線鎌倉駅 徒歩 5分 |
|---|
| 建物構造 | 木造 |
|---|
| 住宅保険 | 加入義務有 |
|---|
| 契約期間 | 2年間 |
|---|
| 現況 | 成約済み |
|---|
| 設備・条件 | バストイレ別 室内洗濯機置き場 システムキッチン IHコンロ エアコン 事務所使用相談可 SOHO使用 アトリエ使用相談可 |
|---|
| 備考 | ※事務所使用の場合は別途消費税要 |
|---|
| 取引態様 | 媒介 |
|---|
| 物件番号 | 2555 |
|---|










稲村ヶ崎ガレージハウス