【 テラスハウス 】★ 先行申込受付中 海まで徒歩圏内 ★
| 最寄駅 | 所在地 | 間取り | 面積 | 築年月 | 賃料 管理費等  | 敷金 礼金  | 
|---|---|---|---|---|---|---|
江ノ島電鉄線長谷駅 徒歩 3分 | 神奈川県鎌倉市長谷2-11-38 | 2 LDK | 70.77㎡ | 2015年02月 | 138,000円 | 
                - -  | 
★ 鎌倉 賃貸物件 ★
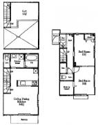
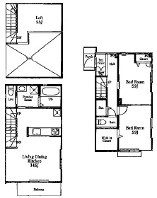
物件写真・間取り
物件概要
| 物件名 | Le Bonheur鎌倉A棟  | 
|---|
| 交通機関 | 江ノ島電鉄線長谷駅 徒歩 3分 横須賀線鎌倉駅 徒歩 20分  | 
|---|
| 建物構造 | 木造  | 
|---|
| 主要採光面 | 東側 | 
|---|
| 駐車場 | 有  | 
|---|
| 駐車場料金 | 10800円  | 
|---|
| 住宅保険 | 加入義務有  | 
|---|
| 保険料 | 22000円  | 
|---|
| 契約期間 | 2年間  | 
|---|
| 現況 | 成約済み  | 
|---|
| 設備・条件 | バストイレ別 追い焚き機能 浴室乾燥機 独立洗面台 室内洗濯機置き場 温水洗浄便座 システムキッチン IHコンロ3口 グリル 都市ガス エアコン クローゼット ウォークインクローゼット 下駄箱 ロフト バルコニー 角部屋  | 
|---|
| 備考 | 鍵交換費用22680円  | 
|---|
| 取引態様 | 媒介  | 
|---|
| 物件番号 | 2876  | 
|---|









        
稲村ヶ崎ガレージハウス