【 一戸建て 】★ 4月中契約開始に限り19万8千円 ★
| 最寄駅 | 所在地 | 間取り | 面積 | 築年月 | 賃料 管理費等 | 敷金 礼金 |
|---|---|---|---|---|---|---|
横須賀線鎌倉駅 徒歩 24分 | 神奈川県鎌倉市二階堂841 | 3 LDK | 92.33㎡ | 2020年01月 | 198,000円 |
- - |
★ 鎌倉 賃貸物件 ★
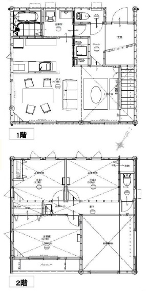
物件写真・間取り
物件概要
| 物件名 | 二階堂戸建A棟 |
|---|
| 交通機関 | 横須賀線鎌倉駅 徒歩 24分 |
|---|
| 建物構造 | 木造 |
|---|
| 駐車場 | 有 |
|---|
| 駐車場料金 | 2台可 |
|---|
| 住宅保険 | 加入義務有り |
|---|
| 保険料 | 23000円 |
|---|
| 契約期間 | 2年間 |
|---|
| 現況 | 成約済み |
|---|
| 設備・条件 | バストイレ別 追い焚き機能 浴室乾燥機 独立洗面台 室内洗濯機置き場 温水洗浄便座 トイレ2ヶ所 システムキッチン ガスコンロ3口 グリル 食洗器 エアコン2基 ウォークインクローゼット クローゼット 下駄箱 モニター付きインターホン バルコニー ロフト |
|---|
| 備考 | 2年未満での解約の場合、違約金2ヶ月あり |
|---|
| 取引態様 | 媒介 |
|---|
| 物件番号 | 2980 |
|---|










MyStyle鎌倉材木座