【 マンション 】★ 大船駅まですぐの立地 先行申込受付中 ★
| 最寄駅 | 所在地 | 間取り | 面積 | 築年月 | 賃料 管理費等 | 敷金 礼金 |
|---|---|---|---|---|---|---|
東海道線大船駅 徒歩 3分 | 神奈川県鎌倉市大船1-24-22 | 1 K | 30.09㎡ | 2011年08月 | 104,000円 |
- - |
#鎌倉 #鎌倉賃貸 #賃貸物件
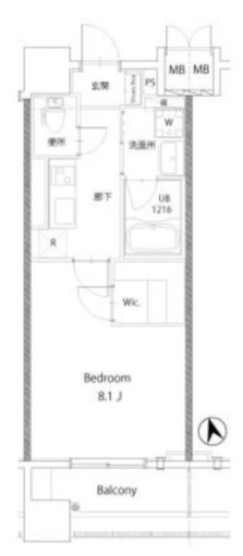
物件写真・間取り
物件概要
| 物件名 | ベルヴュコート湘南 |
|---|
| 交通機関 | 東海道線大船駅 徒歩 3分 |
|---|
| 建物構造 | RC |
|---|
| 所在階 / 階数 | 8階 |
|---|
| 住宅保険 | 加入義務有 |
|---|
| 契約期間 | 2年間 |
|---|
| 現況 | 成約済み |
|---|
| 設備・条件 | バストイレ別 浴室乾燥機 独立洗面台 室内洗濯機置き場 システムキッチン エアコン クローゼット 下駄箱 バルコニー エレベーター オートロック 宅配ボックス |
|---|
| 取引態様 | 媒介 |
|---|
| 物件番号 | 3568 |
|---|










稲村ヶ崎ガレージハウス