【 アパート 】★ アイランドキッチン付き ★
| 最寄駅 | 所在地 | 間取り | 面積 | 築年月 | 賃料 管理費等 | 敷金 礼金 |
|---|---|---|---|---|---|---|
横須賀線鎌倉駅 徒歩 6分 | 神奈川県鎌倉市大町1-1-4 | 1 LDK | 58.7㎡ | 2023年03月 | 139,000円 3000円 | 1ヶ月 1ヶ月 |
★ 鎌倉 賃貸物件 ★
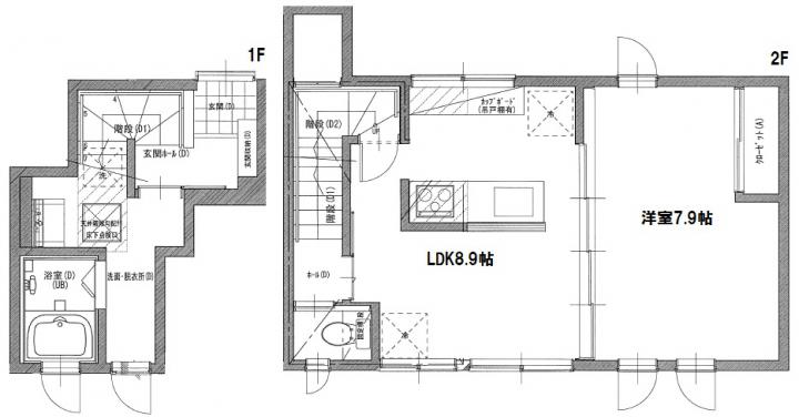
物件写真・間取り
物件概要
| 物件名 | 鎌倉ザ・レジデンス |
|---|
| 交通機関 | 横須賀線鎌倉駅 徒歩 6分 |
|---|
| 建物構造 | 木造 |
|---|
| 所在階 / 階数 | 2階 |
|---|
| 住宅保険 | 加入義務有り |
|---|
| 保険料 | 15400円~ |
|---|
| 契約期間 | 普通借家契約2年間 |
|---|
| 引渡 | 即入居 |
|---|
| 現況 | 空 |
|---|
| 設備・条件 | バストイレ別 追い焚き機能 温水洗浄便座 システムキッチン ガスコンロ コンロ3口 グリル 都市ガス エアコン モニター付きインターホン クローゼット シューズボックス |
|---|
| 備考 | 2年未満での解約の場合、総賃料1ヶ月分の短期解約違約金有 |
|---|
| 取引態様 | 媒介 |
|---|










MyStyle鎌倉材木座