【 マンション 】★ 内見予約受付中 人気の御成エリア ★
| 最寄駅 | 所在地 | 間取り | 面積 | 築年月 | 賃料 管理費等 | 敷金 礼金 |
|---|---|---|---|---|---|---|
横須賀線鎌倉駅 徒歩 4分 | 神奈川県鎌倉市御成町9-18 | 3 LDK | 81.88㎡ | 2007年02月 | 300,000円 |
- - |
★ 鎌倉 賃貸物件 ★
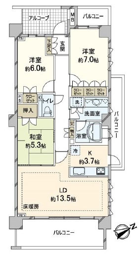
物件写真・間取り
物件概要
| 物件名 | 鎌倉御成町マスターズハウス |
|---|
| 交通機関 | 横須賀線鎌倉駅 徒歩 4分 |
|---|
| 建物構造 | RC |
|---|
| 所在階 / 階数 | 2階 |
|---|
| 主要採光面 | 南東側 |
|---|
| 駐車場 | 有 |
|---|
| 駐車場料金 | 20000円~32000円 |
|---|
| 住宅保険 | 加入義務有 |
|---|
| 保険料 | 12700円(1年) |
|---|
| 契約期間 | 定期借家契約3年間 |
|---|
| 現況 | 成約済み |
|---|
| 設備・条件 | バストイレ別 追い焚き機能 浴室乾燥機 独立洗面台 室内洗濯機置き場 温水洗浄便座 システムキッチン 食洗器 浄水器 ガスコンロ3口 都市ガス エアコン 床暖房 クローゼット 押入 下駄箱 モニター付きインターホン オートロック エレベーター 宅配ボックス |
|---|
| 取引態様 | 媒介 |
|---|
| 物件番号 | 3624 |
|---|










MyStyle鎌倉材木座