【 テラスハウス 】★ 駐車場1台付き 室内リフォーム済み ★
| 最寄駅 | 所在地 | 間取り | 面積 | 築年月 | 賃料 管理費等 | 敷金 礼金 |
|---|---|---|---|---|---|---|
横須賀線鎌倉駅 徒歩 24分 | 神奈川県鎌倉市西御門2-13-10 | 3 DK | 94㎡ | 2001年10月 | 150,000円 |
- - |
★ 鎌倉 賃貸物件 ★
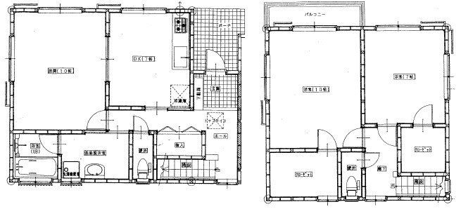
物件写真・間取り
物件概要
| 物件名 | 東御門第5コーポ |
|---|
| 交通機関 | 横須賀線鎌倉駅 徒歩 24分 |
|---|
| 建物構造 | 木造 |
|---|
| 駐車場 | 有 |
|---|
| 駐車場料金 | 1台付き |
|---|
| 住宅保険 | 加入義務有 |
|---|
| 保険料 | 15400円~ |
|---|
| 契約期間 | 2年間 |
|---|
| 現況 | 成約済み |
|---|
| 設備・条件 | バストイレ別 追い焚き機能 独立洗面台 室内洗濯機置き場 温水洗浄便座 トイレ2ヶ所 システムキッチン ガスコンロ3口 都市ガス エアコン2基 ウォークインクローゼット 収納 バルコニー |
|---|
| 取引態様 | 媒介 |
|---|
| 物件番号 | 2960 |
|---|











稲村ヶ崎ガレージハウス