【 一戸建て 】★ ペット飼育相談可 海まで徒歩圏内 ★
最寄駅 | 所在地 | 間取り | 面積 | 築年月 | 賃料 管理費等 | 敷金 礼金 |
---|---|---|---|---|---|---|
横須賀線鎌倉駅 徒歩 20分 | 神奈川県鎌倉市材木座6-3-30 | 4 LDK | 115.26㎡ | 2006年01月 | 198,000円 |
- - |
★ 鎌倉 賃貸物件 ★
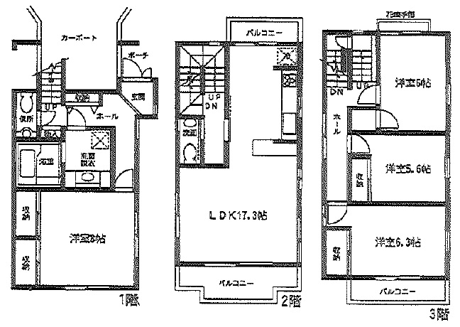
物件写真・間取り
物件概要
物件名 | 材木座6丁目貸家 |
---|
交通機関 | 横須賀線鎌倉駅 徒歩 20分 |
---|
建物構造 | 木造 |
---|
駐車場 | 有 |
---|
駐車場料金 | 1台付き |
---|
住宅保険 | 加入義務有 |
---|
保険料 | 25000円 |
---|
契約期間 | 2年間(更新可) |
---|
現況 | 成約済み |
---|
設備・条件 | バストイレ別 追い焚き機能 浴室乾燥機 独立洗面台 室内洗濯機置き場 温水洗浄便座 トイレ2ヶ所 システムキッチン 都市ガス エアコン モニター付きインターホン フローリング クローゼット バルコニー ルーフバルコニー 駐車場 |
---|
備考 | ペット飼育時敷金1ヶ月追加 |
---|
取引態様 | 媒介 |
---|
物件番号 | 2243 |
---|

稲村ヶ崎ガレージハウス